





-
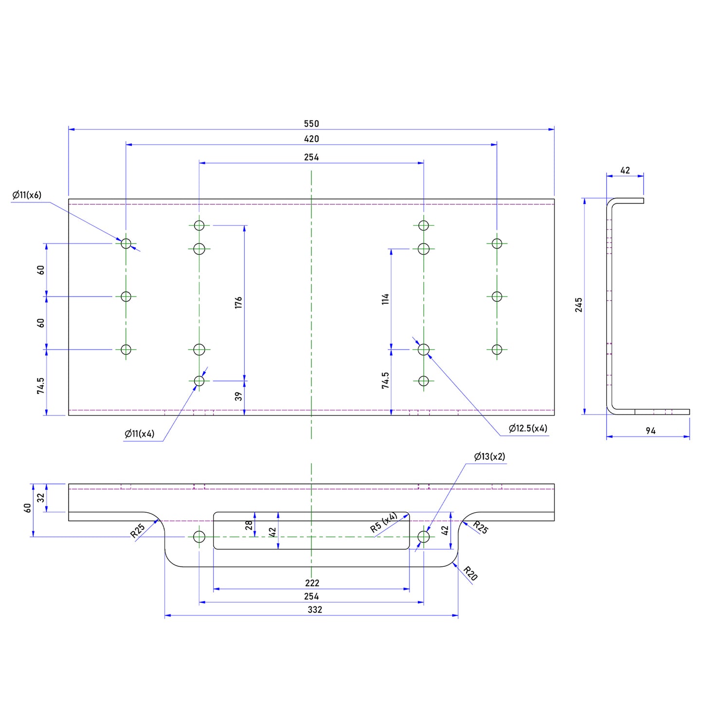
Piastra di montaggio per verricelli idraulici WINCHMAX ed elettrici da 17.000 lb
Per un'installazione rapida e semplice di un verricello sul vostro carro attrezzi, rimorchio di recupero o altre applicazioni con pianale.
Adatta anche per applicazioni con montaggio a pavimento o come base per la realizzazione di una piastra di montaggio personalizzata per 4x4.
Caratteristiche
- Più profonda (dalla parte anteriore a quella posteriore) rispetto alla nostra piastra di montaggio standard per ospitare verricelli con corpi di diametro maggiore, come la gamma di verricelli idraulici WINCHMAX e i verricelli da 17.000 lb e Modelli elettrici da 17.500 lb.
- Forati per bulloni standard da 254 mm x 114,3 mm.
- Verniciati a polvere nera per un'eccellente resistenza alla corrosione.
- Preforati per verricello e passacavo a rulli.
- Prodotti nel Regno Unito.
-
